Met een eigen account kun je panden volgen, opslaan als favoriet, je zoekprofiel opslaan en jouw eigen notities bij een huis maken.
Verkocht
Verkocht: Burgemeester Lotsystraat 21, 2235 CX Valkenburg
Beschrijving
Instapklare hoekwoning met zonnige tuin op het zuidwestenAan Burgemeester Lotsystraat 21 in Valkenburg (ZH) staat deze verrassend ruime en uitstekend onderhouden hoekwoning. Met een woonoppervlakte van ruim 114 m², een zonnige tuin op het zuidwesten en een perceel van 246 m² biedt deze woning volop leefruimte, zowel binnen als buiten. In 2019 is de woning grondig verbouwd, waardoor comfort, duurzaamheid en een moderne uitstraling perfect samenkomen. Gelegen in een fijne, rustige woonwijk is dit een ideale plek voor wie zorgeloos en prettig wil wonen.
De woning
Deze charmante woning uit 1948 combineert karakter met het comfort van nu. In 2019 is de woning verbouwd met een uitbouw, een nieuwe keuken en badkamer, vernieuwde elektra, een 3-fase meterkast en een laadpunt voor een elektrische auto. Daarnaast is de woning verduurzaamd met dak- en vloerisolatie, HR++ beglazing, 9 zonnepanelen, een moderne cv-ketel en airco’s.
De woning beschikt over drie slaapkamers en is dankzij de hoekligging heerlijk licht. Parkeren kan op de eigen oprit. De zonnige achtertuin op het zuidwesten biedt veel privacy en is een fijne plek om van de zon te genieten.
Bijzonderheden:
Bouwjaar 1948
Hoekwoning
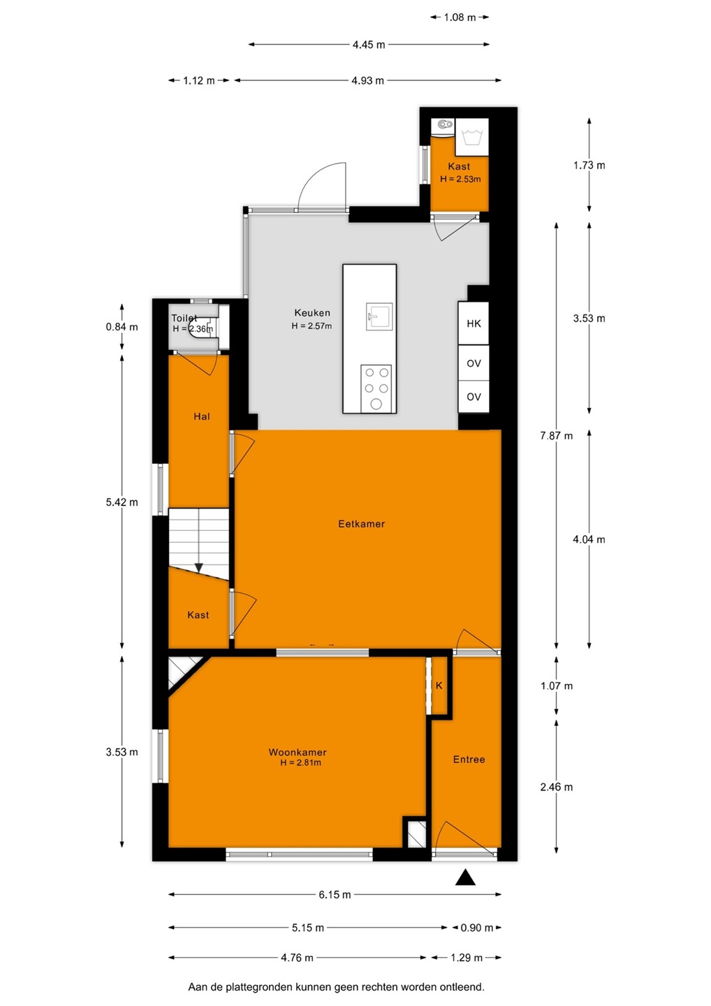
Woonoppervlakte 114 m²
Perceel 246 m²
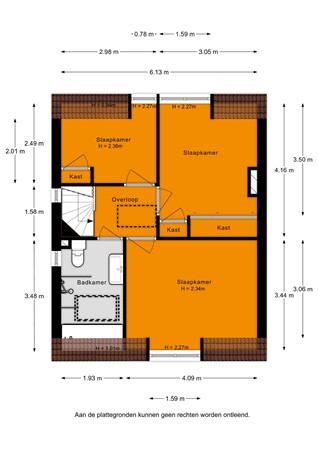
3 slaapkamers
Gelegen in een prettige woonwijk
Zonnige achtertuin op het zuidwesten
Verbouwing 2019: Nieuwe keuken, nieuwe badkamer, uitbouw, gevels gereinigd en opnieuw gevoegd, dakisolatie, alle elektra vernieuwd, nieuwe meterkast (3-fase), laadpunt elektrische auto
verwarming via cv-ketel (2019) en airco’s (2019)
9 zonnepanelen (2020)
Vloerisolatie (2021)
Houten kozijnen met HR++ beglazing
Waarom wonen in Valkenburg (ZH)?
Valkenburg (ZH) is een charmant dorp met een fijne, rustige sfeer en een sterk gemeenschapsgevoel. Je woont hier groen en comfortabel, met scholen, winkels en openbaar vervoer in de buurt. Tegelijk zijn plaatsen als Leiden, Katwijk en de kust snel bereikbaar. Een ideale combinatie van dorps wonen met stedelijke voorzieningen dichtbij.
Kenmerken
| Overdracht | |
|---|---|
| Referentienummer | 06090 |
| Vraagprijs | € 595.000,- k.k. |
| Status | Verkocht |
| Aanvaarding | In overleg |
| Aangeboden sinds | Dinsdag 10 februari 2026 |
| Laatste wijziging | Dinsdag 3 maart 2026 |
| Bouw | |
|---|---|
| Type object | Woonhuis, eengezinswoning, hoekwoning |
| Soort bouw | Bestaande bouw |
| Bouwperiode | 1948 |
| Dakbedekking | Dakpannen |
| Type dak | Zadeldak |
| Isolatievormen | Dakisolatie Dubbel glas HR-glas Muurisolatie Vloerisolatie Volledig geïsoleerd |
| Oppervlaktes en inhoud | |
|---|---|
| Perceeloppervlakte | 246 m² |
| Woonoppervlakte | 114 m² |
| Inhoud | 460 m³ |
| Oppervlakte overige inpandige ruimten | 10 m² |
| Indeling | |
|---|---|
| Aantal bouwlagen | 3 |
| Aantal kamers | 4 (waarvan 3 slaapkamers) |
| Aantal badkamers | 1 (en 1 apart toilet) |
| Locatie | |
|---|---|
| Ligging | Dichtbij openbaar vervoer In woonwijk Nabij school Nabij snelweg |
| Tuin | |
|---|---|
| Type | Achtertuin |
| Hoofdtuin | Ja |
| Oriëntering | Zuid-west |
| Heeft een achterom | Ja |
| Staat | Goed onderhouden |
| Tuin 2 - Type | Voortuin |
| Tuin 2 - Oriëntering | Noord-oost |
| Tuin 2 - Staat | Goed onderhouden |
| Tuin 3 - Type | Zijtuin |
| Tuin 3 - Staat | Goed onderhouden |
| Energieverbruik | |
|---|---|
| Energielabel | B |
| CV ketel | |
|---|---|
| CV ketel | Nefit Proline |
| Warmtebron | Gas |
| Bouwjaar | 2019 |
| Combiketel | Ja |
| Eigendom | Eigendom |
| Uitrusting | |
|---|---|
| Warm water | CV-ketel |
| Verwarmingssysteem | Airconditioning Centrale verwarming |
| Keukenvoorzieningen | Inbouwapparatuur Kookeiland |
| Badkamervoorzieningen | Douche Ligbad Toilet Wastafel Wastafelmeubel |
| Heeft airco | Ja |
| Glasvezelaansluiting aanwezig | Ja |
| Tuin aanwezig | Ja |
| Heeft schuur/berging | Ja |
| Kadastrale gegevens | |
|---|---|
| Kadastrale aanduiding | Valkenburg Zuid-Holland A 1911 |
| Perceeloppervlakte | 246 m² |
| Omvang | Geheel perceel |
| Eigendomsituatie | Eigen grond |