Met een eigen account kun je panden volgen, opslaan als favoriet, je zoekprofiel opslaan en jouw eigen notities bij een huis maken.
Beschrijving
Wonen én werken aan huis aan Noordeinde 77aWelkom aan Noordeinde 77a: een royale vrijstaande woning van ca. 161 m² waar wonen en werken perfect gecombineerd kunnen worden. De woning is volledig van deze tijd, met respect voor de authentieke oorsprong uit 1947. Dankzij de speelse indeling en de extra ruimtes is dit huis uitermate geschikt voor een kantoor, praktijk, atelier of studio aan huis.
De woning ligt aan het gezellige Noordeinde, op slechts een paar stappen van het centrum. Hier profiteer je van een levendige straat en een centrale ligging, terwijl je tegelijkertijd comfortabel en rustig woont.
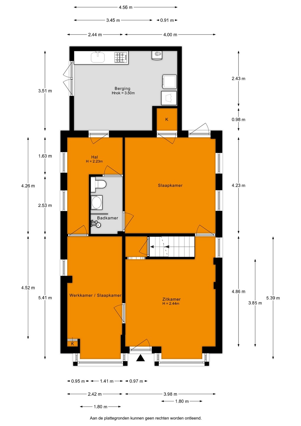
Binnen vind je drie slaapkamers, twee badkamers en meerdere ruimtes die flexibel in te richten zijn als werkruimte. Ideaal voor ondernemers die hun praktijk, kantoor, atelier of studio aan huis willen vestigen. De verzorgde tuin rondom de woning biedt daarnaast een fijne plek om te ontspannen na een werkdag.
Een unieke plek waar wonen, ondernemen en genieten samenkomen.
Bijzonderheden
Vrijstaande woning (bouwjaar 1947)
Woonoppervlakte ca. 161 m²
Berging van ca. 14 m² en kelder van ca. 15 m²
Energielabel C
3 slaapkamers, 2 badkamers
Speelse indeling met uitstekende mogelijkheden voor kantoor, praktijk, atelier of studio aan huis
Parkeergelegenheid voor minimaal twee auto's op eigen terrein
Authentieke, sfeervolle woning met moderne afwerking
Vernieuwingen 2019: elektra, leidingen, stucwerk, muurisolatie, dakisolatie, badkamer begane grond, tweede badkamer en extra toilet 2e etage
Fijne tuin rondom met volop ruimte om te ontspannen
Houten kozijnen
CV-ketel Remeha 2018
Waarom wonen én werken aan het Noordeinde?
Het Noordeinde is een levendige en karaktervolle straat waar wonen en ondernemen goed samengaan. De centrale ligging en de ruimte die deze woning biedt maken het een aantrekkelijke plek voor bijvoorbeeld een praktijk, studio, atelier of kantoor aan huis.
Alle voorzieningen liggen op loopafstand: winkels, horeca en het dorpscentrum bevinden zich om de hoek. Daarnaast ligt Roelofarendsveen centraal tussen steden als Leiden, Amsterdam en Alphen aan den Rijn, waardoor de bereikbaarheid uitstekend is.
Een woning met mogelijkheden
Deze woning straalt warmte en karakter uit. De authentieke details geven de woning een eigen sfeer, terwijl de moderne aanpassingen zorgen voor comfort. De ruime indeling en multifunctionele ruimtes maken het een ideale plek voor wie wonen en werken wil combineren.
Of je nu droomt van een praktijk aan huis, een kantoorruimte, atelier of studio: hier kan het allemaal.
Plan snel een bezichtiging en ontdek zelf de mogelijkheden van Noordeinde 77a.
Kenmerken
| Overdracht | |
|---|---|
| Referentienummer | 06084 |
| Vraagprijs | € 750.000,- k.k. |
| Aanvaarding | In overleg |
| Aangeboden sinds | Dinsdag 9 december 2025 |
| Laatste wijziging | Vrijdag 13 maart 2026 |
| Bouw | |
|---|---|
| Type object | Woonhuis, eengezinswoning, vrijstaande woning |
| Soort bouw | Bestaande bouw |
| Bouwperiode | 1947 |
| Dakbedekking | Dakpannen |
| Type dak | Zadeldak |
| Isolatievormen | Dakisolatie Grotendeels dubbel glas HR-glas Muurisolatie |
| Oppervlaktes en inhoud | |
|---|---|
| Perceeloppervlakte | 283 m² |
| Woonoppervlakte | 161 m² |
| Inhoud | 680 m³ |
| Oppervlakte overige inpandige ruimten | 30,4 m² |
| Oppervlakte gebouwgebonden buitenruimte | 1,95 m² |
| Indeling | |
|---|---|
| Aantal bouwlagen | 3 |
| Aantal kamers | 4 (waarvan 3 slaapkamers) |
| Aantal badkamers | 2 (en 1 apart toilet) |
| Locatie | |
|---|---|
| Ligging | Dichtbij openbaar vervoer In centrum |
| Tuin | |
|---|---|
| Type | Tuin rondom |
| Hoofdtuin | Ja |
| Oriëntering | Oosten |
| Staat | Goed onderhouden |
| Energieverbruik | |
|---|---|
| Energielabel | C |
| CV ketel | |
|---|---|
| CV ketel | Remeha |
| Warmtebron | Gas |
| Bouwjaar | 2018 |
| Combiketel | Ja |
| Eigendom | Eigendom |
| Uitrusting | |
|---|---|
| Aantal parkeerplaatsen | 2 |
| Warm water | CV-ketel |
| Verwarmingssysteem | Centrale verwarming |
| Ventilatie methode | Mechanische ventilatie |
| Badkamervoorzieningen Badkamer 1 | Inloopdouche Toilet Wastafel Wastafelmeubel |
| Badkamervoorzieningen Badkamer 2 | Douche Dubbele wastafel Ligbad Toilet Wastafelmeubel |
| Heeft een balkon | Ja |
| Tuin aanwezig | Ja |
| Heeft ventilatie | Ja |
| Kadastrale gegevens | |
|---|---|
| Kadastrale aanduiding | Alkemade K 1906 |
| Perceeloppervlakte | 283 m² |
| Omvang | Geheel perceel |
| Eigendomsituatie | Eigen grond |