Met een eigen account kun je panden volgen, opslaan als favoriet, je zoekprofiel opslaan en jouw eigen notities bij een huis maken.
Verkocht
Verkocht: Koolraap 14, 2371 DP Roelofarendsveen
Beschrijving
Moderne, uitgebouwde woning (2019) met vloerverwarming, 5 zonnepanelen en tuin in jonge, kindvriendelijke wijk.Comfortabel en energiezuinig wonen in een instapklare woning? Dan is Koolraap 14 precies wat je zoekt. Deze woning uit 2019 biedt 110 m² woonoppervlakte en is helemaal instapklaar. Dankzij de kunststof kozijnen en volledige isolatie is de woning onderhoudsvriendelijk én energiezuinig. Je woont hier in een jonge, kindvriendelijke wijk met alle voorzieningen dichtbij. En met een fijne achtertuin is het hier elke dag genieten.
Kenmerken
Bouwjaar: 2019
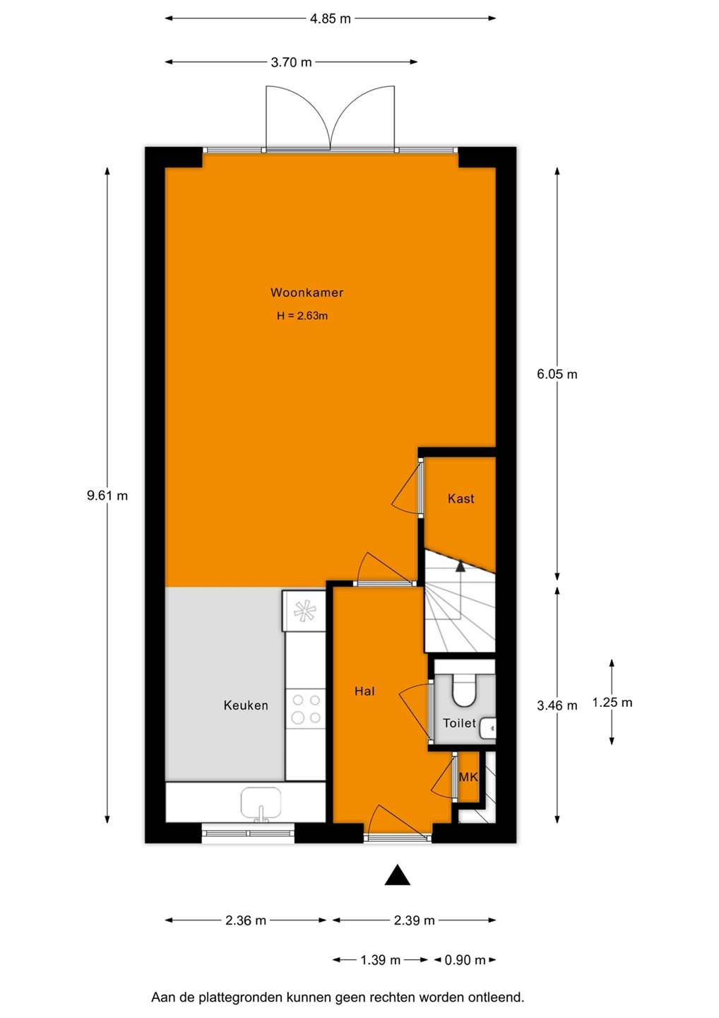
Woonoppervlakte: ca. 110 m²
Perceel: 105 m²
4 slaapkamers
Volledig geïsoleerd
Kunststof kozijnen
Vloerverwarming begane grond
Achtertuin gelegen op het noorden
Gelegen in een jonge, kindvriendelijke woonwijk
Waarom hier wonen?
Hier woon je in een prettige en moderne omgeving waar buren elkaar kennen en kinderen veilig buiten spelen. Alles wat je nodig hebt – zoals winkels, scholen, sportfaciliteiten en horeca – ligt op korte afstand. Tegelijkertijd geniet je van een rustige woonplek met goede bereikbaarheid richting omliggende steden. Ideaal voor wie comfortabel en zorgeloos wil wonen in een relatief nieuwe woning.
Zie jij jezelf hier al wonen? Deze woning is helemaal klaar voor de volgende stap – misschien wel die van jou! Neem gerust contact op voor een bezichtiging en ervaar het zelf.
Kenmerken
| Overdracht | |
|---|---|
| Referentienummer | 06108 |
| Vraagprijs | € 545.000,- k.k. |
| Status | Verkocht |
| Aanvaarding | In overleg |
| Aangeboden sinds | Dinsdag 31 maart 2026 |
| Laatste wijziging | Woensdag 6 mei 2026 |
| Bouw | |
|---|---|
| Type object | Woonhuis, eengezinswoning, tussenwoning |
| Soort bouw | Bestaande bouw |
| Bouwperiode | 2019 |
| Dakbedekking | Dakpannen |
| Type dak | Zadeldak |
| Isolatievormen | Dakisolatie Dubbel glas HR-glas Muurisolatie Vloerisolatie Volledig geïsoleerd |
| Oppervlaktes en inhoud | |
|---|---|
| Perceeloppervlakte | 105 m² |
| Woonoppervlakte | 109,6 m² |
| Inhoud | 396 m³ |
| Oppervlakte externe bergruimte | 5,6 m² |
| Indeling | |
|---|---|
| Aantal bouwlagen | 3 |
| Aantal kamers | 5 (waarvan 4 slaapkamers) |
| Aantal badkamers | 1 (en 1 apart toilet) |
| Locatie | |
|---|---|
| Ligging | Dichtbij openbaar vervoer In woonwijk Nabij snelweg |
| Tuin | |
|---|---|
| Type | Achtertuin |
| Hoofdtuin | Ja |
| Oriëntering | Noorden |
| Heeft een achterom | Ja |
| Staat | Goed onderhouden |
| Energieverbruik | |
|---|---|
| Energielabel | A |
| CV ketel | |
|---|---|
| CV ketel | Intergas |
| Warmtebron | Gas |
| Bouwjaar | 2019 |
| Combiketel | Ja |
| Eigendom | Eigendom |
| Uitrusting | |
|---|---|
| Warm water | CV-ketel |
| Verwarmingssysteem | Centrale verwarming |
| Ventilatie methode | Mechanische ventilatie |
| Keukenvoorzieningen | Inbouwapparatuur |
| Badkamervoorzieningen | Douche Toilet Wastafel Wastafelmeubel |
| Glasvezelaansluiting aanwezig | Ja |
| Tuin aanwezig | Ja |
| Heeft schuur/berging | Ja |
| Heeft een dakraam | Ja |
| Heeft zonnepanelen | Ja |
| Heeft ventilatie | Ja |
| Kadastrale gegevens | |
|---|---|
| Kadastrale aanduiding | Alkemade k 3781 |
| Perceeloppervlakte | 105 m² |
| Omvang | Geheel perceel |
| Eigendomsituatie | Eigen grond |