Met een eigen account kun je panden volgen, opslaan als favoriet, je zoekprofiel opslaan en jouw eigen notities bij een huis maken.
Beschrijving
! Let op: bieden vanaf € 575.000,- !Royale gezinswoning met vrij uitzicht over de polder – 169 m² wooncomfort
Wonen met rust, ruimte én een blijvend vrij uitzicht over het polderlandschap?
Aan de Graaf Willem II laan 35 ervaar je dagelijks het gevoel van vrijheid, terwijl je woont in een royale en comfortabele gezinswoning van maar liefst 169 m².
De diepe achtertuin biedt een prachtig weids uitzicht richting de molen en het groene landschap. Hier geniet je van lange zomeravonden, rust en privacy – een plek waar je elke dag thuiskomt met een gevoel van ruimte.
Wat maakt deze woning bijzonder?
• Vrij uitzicht over het polderlandschap
• 169 m² woonoppervlakte
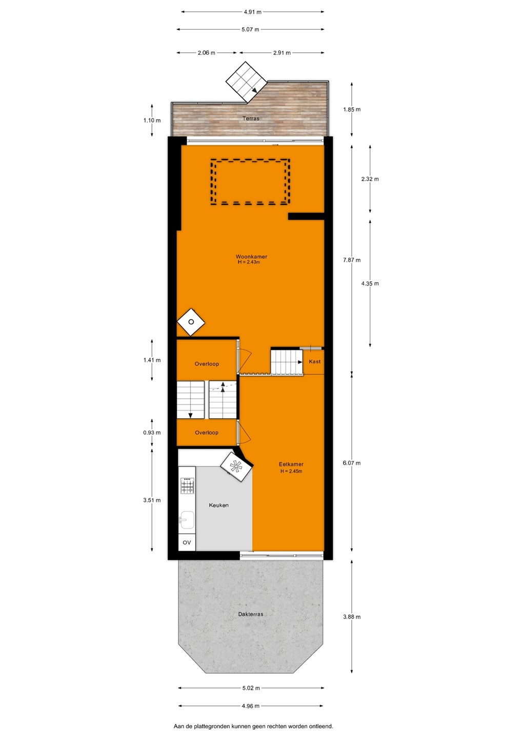
• Ruime woonkamer met veel lichtinval
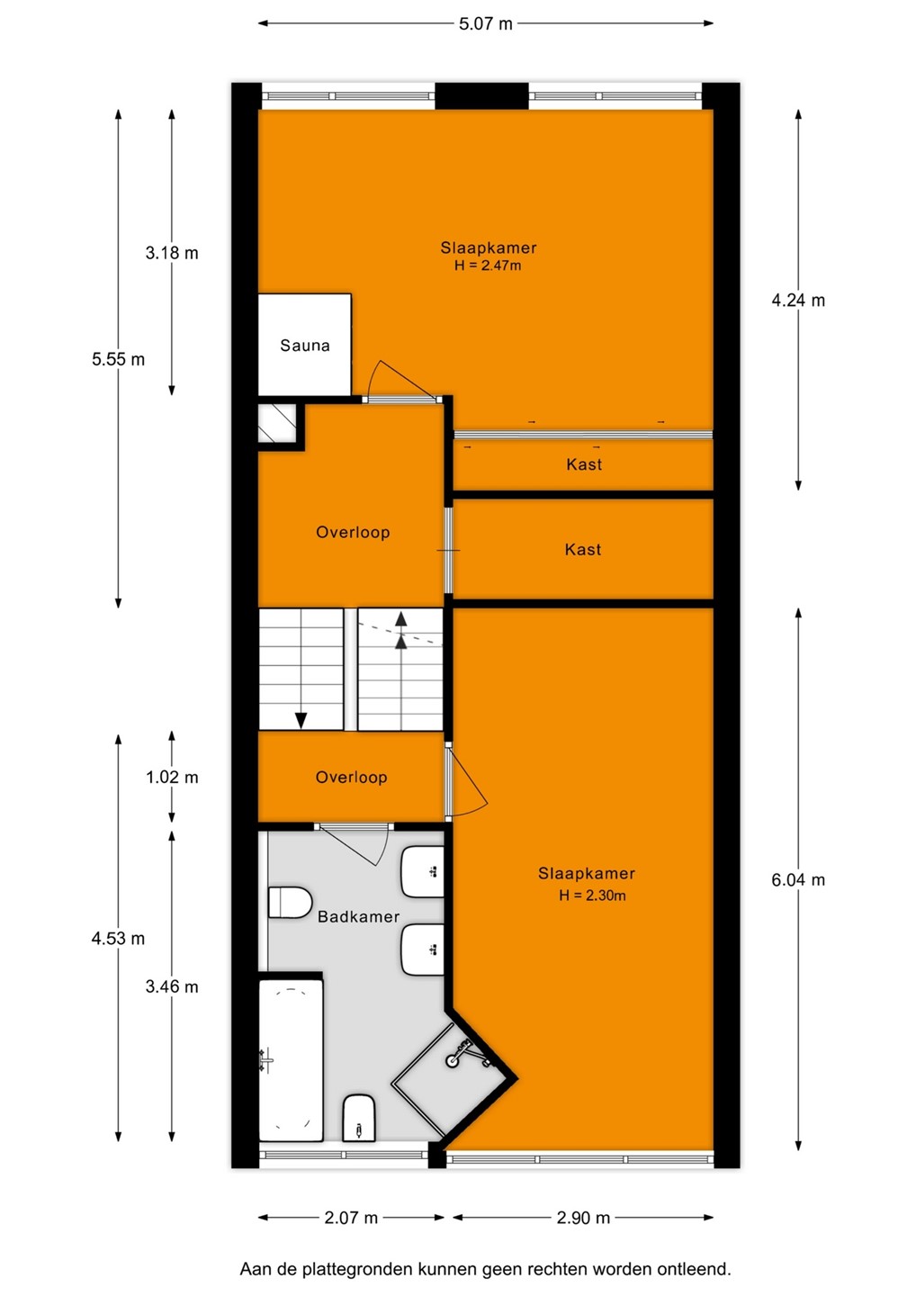
• 3 royale slaapkamers + 4e slaapkamer op zolder
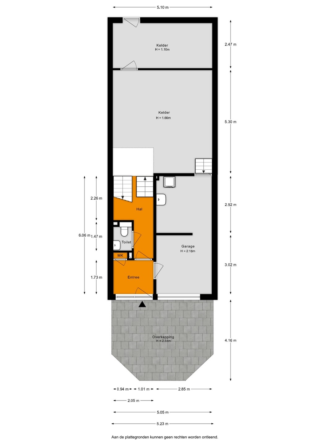
• Circa 45 m² extra ruimte onder de woning
• Garage én carport
• Energielabel B
• Snelle aansluiting op de A4
• Schiphol op circa 20 minuten afstand
De ruime woonkamer biedt volop leefruimte voor een gezin en staat in directe verbinding met de tuin. Dankzij de grote raampartijen geniet je hier van veel daglicht en een fraai zicht naar buiten. De keuken is ruim opgezet en biedt de mogelijkheid om deze naar eigen smaak te moderniseren – een mooie kans om hier jouw eigen woonwensen te realiseren. Op de verschillende woonniveaus bevinden zich in totaal vier slaapkamers en een complete badkamer. Doordat de woning is ingedeeld in meerdere niveaus, voelen de ruimtes licht, praktisch en speels aan, zonder dat er sprake is van een ingewikkelde indeling.
Extra ruimte
Onder de woning bevindt zich circa 45 m² aan extra ruimte met een hoogte van ongeveer 1meter70. Ideaal als royale opslagruimte. In de straat hebben meerdere woningen deze ruimte (gedeeltelijk) verdiept en ingericht als hobby- of werkruimte, wat interessante mogelijkheden biedt voor de toekomst.
Ligging
Gelegen in een rustige woonomgeving in Hoogmade, met een snelle aansluiting op de A4. Binnen circa 30 minuten bereik je Amsterdam of Den Haag en Schiphol ligt op slechts 20 minuten rijden. Hier woon je landelijk en vrij, met de Randstad binnen handbereik.
Ben je op zoek naar een ruime woning met een unieke vrije ligging en volop mogelijkheden om deze naar eigen smaak verder te moderniseren? Dan nodigen wij je graag uit om de ruimte en het uitzicht zelf te komen ervaren.
Kenmerken
| Overdracht | |
|---|---|
| Referentienummer | 06086 |
| Vraagprijs | € 575.000,- k.k. |
| Aanvaarding | In overleg |
| Aangeboden sinds | Vrijdag 12 december 2025 |
| Laatste wijziging | Dinsdag 7 april 2026 |
| Bouw | |
|---|---|
| Type object | Woonhuis, eengezinswoning, tussenwoning, driveinwoning |
| Soort bouw | Bestaande bouw |
| Bouwperiode | 1975 |
| Dakbedekking | Dakpannen |
| Type dak | Zadeldak |
| Isolatievormen | Dubbel glas |
| Oppervlaktes en inhoud | |
|---|---|
| Perceeloppervlakte | 182 m² |
| Woonoppervlakte | 169 m² |
| Inhoud | 691 m³ |
| Oppervlakte overige inpandige ruimten | 44,8 m² |
| Oppervlakte gebouwgebonden buitenruimte | 27,4 m² |
| Indeling | |
|---|---|
| Aantal bouwlagen | 4 |
| Aantal kamers | 5 (waarvan 4 slaapkamers) |
| Aantal badkamers | 1 (en 1 apart toilet) |
| Locatie | |
|---|---|
| Ligging | Aan rustige weg Dichtbij openbaar vervoer In woonwijk Nabij school Vrij uitzicht |
| Tuin | |
|---|---|
| Type | Voortuin |
| Oriëntering | Zuidoost |
| Staat | Normaal |
| Tuin 2 - Type | Achtertuin |
| Tuin 2 - Hoofdtuin | Ja |
| Tuin 2 - Oriëntering | Noord west |
| Tuin 2 - Staat | Goed onderhouden |
| Energieverbruik | |
|---|---|
| Energielabel | B |
| CV ketel | |
|---|---|
| CV ketel | Remeha |
| Warmtebron | Gas |
| Combiketel | Ja |
| Eigendom | Eigendom |
| Uitrusting | |
|---|---|
| Aantal parkeerplaatsen | 2 |
| Aantal overdekte parkeerplaatsen | 1 |
| Warm water | CV-ketel |
| Verwarmingssysteem | Centrale verwarming Houtkachel Vloerverwarming (gedeeltelijk) |
| Ventilatie methode | Mechanische ventilatie |
| Badkamervoorzieningen | Douche Dubbele wastafel Ligbad Toilet |
| Parkeergelegenheid | Inpandige garage |
| Heeft een rookkanaal | Ja |
| Tuin aanwezig | Ja |
| Heeft een garage | Ja |
| Heeft een sauna | Ja |
| Heeft een dakraam | Ja |
| Heeft ventilatie | Ja |
| Kadastrale gegevens | |
|---|---|
| Kadastrale aanduiding | Alkemade D 1048 |
| Perceeloppervlakte | 182 m² |
| Omvang | Geheel perceel |
| Eigendomsituatie | Eigen grond |