Met een eigen account kun je panden volgen, opslaan als favoriet, je zoekprofiel opslaan en jouw eigen notities bij een huis maken.
Verkocht
Verkocht: Leidseweg 30, 2374 AN Oud Ade
Beschrijving
Karakteristieke vrijstaande woning met uitzonderlijk veel ruimte en een royale tuin.Vrijstaand wonen op een royaal perceel van maar liefst 1.320 m², met volop rust, privacy en ruimte — dat is precies wat deze karakteristieke woning aan de Leidseweg 30 in Oud Ade te bieden heeft. Een gemeentelijk monument met historie én hedendaags wooncomfort, waar oud en nieuw op een bijzondere manier samenkomen.
De woning beschikt over een zeer royale woonoppervlakte van ca. 241 m² en is in 2011 ingrijpend verbouwd en uitgebreid. De achterzijde is volledig nieuw gebouwd, terwijl de oorspronkelijke woning met zorg is gerenoveerd: een nieuw dak, gereinigde en opnieuw gevoegde gevels. HR++ beglazing, gedeeltelijke vloerverwarming en 16 zonnepanelen zorgen voor comfort en duurzaamheid. De ruime leefruimtes en grote raampartijen maken dit een heerlijk licht en comfortabel huis.
Aan de achterzijde geniet je van een prachtig vrij uitzicht over de uitgestrekte polders, waardoor je optimaal kunt genieten van de rust en ruimte van het prachtige landschap. De royale tuin rondom de woning biedt volop mogelijkheden voor ontspanning, spelen en buitenleven.
Een unieke woning voor wie ruimte, karakter en een bijzondere woonbeleving zoekt.
Bijzonderheden:
• Bouwjaar: 1930
• Gemeentelijk monument
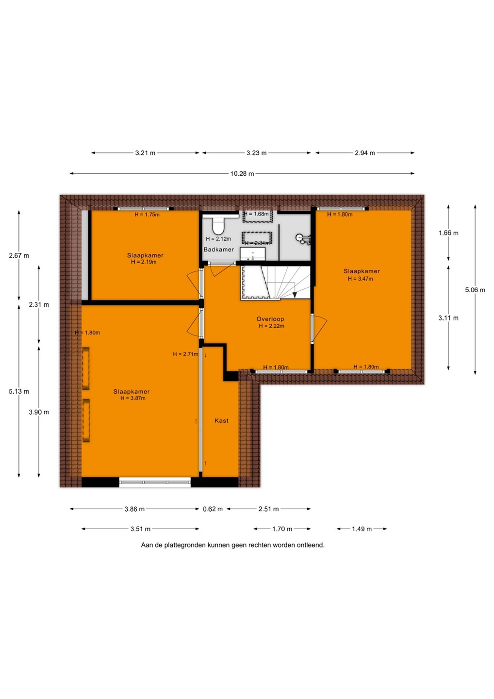
• Woonoppervlakte: ca. 241 m²
• Perceeloppervlakte: 1.320 m²
• Vrijstaande woning
• Complete nieuwbouw achterzijde (2011)
• Verbouwing oorspronkelijke woning in 2011: nieuw dak, gevels gereinigd en opnieuw gevoegd
• HR++ beglazing
• Deels vloerverwarming
• 16 zonnepanelen (2023)
• Royale tuin rondom de woning met veel privacy en vrij uitzicht over het polderlandschap
• Aanlegsteiger voor een sloep
• Tuin aangelegd met een drainage systeem
Waarom wonen aan de Leidseweg in Oud Ade?
Oud Ade is een charmant en landelijk dorp, omgeven door groen en water. Hier woon je rustig en vrij, met volop ruimte om je heen, terwijl steden als Leiden (10 minuten) en Amsterdam (20 minuten), voorzieningen in de omgeving (basisschool 700m) en snelwegen goed bereikbaar zijn. Het prachtige uitzicht over de polders aan de achterzijde maakt deze locatie bijzonder aantrekkelijk voor wie rust, natuur en ruimte waardeert.
Kortom: Leidseweg 30 is een unieke, vrijstaande woning met een indrukwekkend woonoppervlak, een groot perceel, een prachtig uitzicht en een bijzonder karakter. Een plek waar ruimte, historie en comfort samenkomen.
Plan eenvoudig online je bezichtiging en laat je verrassen.
Kenmerken
| Overdracht | |
|---|---|
| Referentienummer | 06085 |
| Vraagprijs | € 1.250.000,- k.k. |
| Status | Verkocht |
| Aanvaarding | In overleg |
| Aangeboden sinds | Vrijdag 30 januari 2026 |
| Laatste wijziging | Vrijdag 20 februari 2026 |
| Bouw | |
|---|---|
| Type object | Woonhuis, eengezinswoning, vrijstaande woning, dijkwoning |
| Soort bouw | Bestaande bouw |
| Bouwperiode | 1930 |
| Dakbedekking | Dakpannen |
| Type dak | Mansardedak |
| Isolatievormen | Dakisolatie Dubbel glas |
| Oppervlaktes en inhoud | |
|---|---|
| Perceeloppervlakte | 1.320 m² |
| Woonoppervlakte | 241 m² |
| Inhoud | 924 m³ |
| Oppervlakte externe bergruimte | 18,5 m² |
| Indeling | |
|---|---|
| Aantal bouwlagen | 3 |
| Aantal kamers | 7 (waarvan 3 slaapkamers) |
| Aantal badkamers | 1 (en 2 aparte toiletten) |
| Locatie | |
|---|---|
| Ligging | Open ligging Vrij uitzicht |
| Tuin | |
|---|---|
| Type | Tuin rondom |
| Oriëntering | Noorden |
| Staat | Prachtig aangelegd |
| Energieverbruik | |
|---|---|
| Energielabel | C |
| CV ketel | |
|---|---|
| CV ketel | Vaillant |
| Warmtebron | Gas |
| Bouwjaar | 2010 |
| Combiketel | Ja |
| Eigendom | Eigendom |
| Uitrusting | |
|---|---|
| Warm water | CV-ketel |
| Verwarmingssysteem | Centrale verwarming Open haard |
| Badkamervoorzieningen | Douche Toilet Wastafel Wastafelmeubel |
| Heeft een open haard | Ja |
| Heeft een rookkanaal | Ja |
| Tuin aanwezig | Ja |
| Heeft een dakraam | Ja |
| Heeft zonnepanelen | Ja |
| Kadastrale gegevens | |
|---|---|
| Kadastrale aanduiding | Alkemade E 1112 |
| Perceeloppervlakte | 382 m² |
| Omvang | Geheel perceel |
| Eigendomsituatie | Eigen grond |
| Kadastrale aanduiding | Alkemade E 1113 |
| Perceeloppervlakte | 559 m² |
| Omvang | Geheel perceel |
| Eigendomsituatie | Eigen grond |
| Kadastrale aanduiding | Alkemade E 594 |
| Perceeloppervlakte | 379 m² |
| Omvang | Geheel perceel |
| Eigendomsituatie | Eigen grond |