| Prijs | € 370.000,- k.k. |
| Type object | Appartement, benedenwoning |
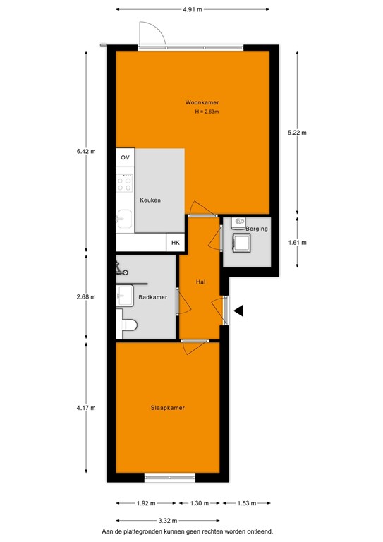
| Woonoppervlakte | 56 m² |
| Aanvaarding | In overleg |
| Status | Nieuw in verkoop |
Modern en gasloos appartement (2021) met tuin in het hart van woonwijk Westend in Roelofarendsveen! Wonen in een vrijwel nieuw, energiezuinig appartement met eigen tuin? Dit is je kans! Dit moderne 2-kamerappartement van circa 56 m² ligt in de populaire wijk Westend, op loopafstand van het centrum van Roelofarendsveen. Het appartement is volledig gasloos en voorzien van een warmtepomp, vloerverwarming en een warmte-terugwininstallatie (WTW), wat zorgt voor optimaal comfort én lage energielasten. Met een strakke keuken, moderne badkamer en volledige vloerverwarming is dit appartement helemaal instapklaar. En als extra: een fijne tuin waar je heerlijk kunt ontspannen. Kenmerken Bouwjaar: 2021 Woonoppervlakte: ca. 56 m² Appartement met tuin 1 slaapkamer Moderne keuken en badkamer Energielabel A+++ Volledig geïsoleerd Gasloos Voorzien van volledige vloerverwarming Warmtepomp en warmte-terugwininstallatie (WTW) Elektrische boiler VvE bijdrage € 56,- per maand Gelegen in woonwijk Westend Op loopafstand van het centrum van Roelofarendsveen Waarom hier wonen? Dit appartement is perfect voor wie comfortabel, duurzaam én centraal wil wonen. Je woont in een rustige, moderne wijk, maar loopt zo naar winkels, horeca en voorzieningen. Dankzij de uitstekende isolatie en duurzame installaties profiteer je van lage energielasten en een toekomstbestendige woning. De eigen tuin geeft bovendien net dat extra stukje vrijheid dat je bij veel andere appartementen mist. Slot Zie jij jezelf hier al thuiskomen? Plan snel een bezichtiging en ervaar zelf het comfort van dit moderne en duurzame appartement aan de Diamant!
| Referentienummer | 06103 |
| Vraagprijs | € 370.000,- k.k. |
| Servicekosten | € 56,- |
| Status | Nieuw in verkoop |
| Aanvaarding | In overleg |
| Aangeboden sinds | Dinsdag 31 maart 2026 |
| Type object | Appartement, benedenwoning |
| Woonlaag | 1e woonlaag |
| Soort bouw | Bestaande bouw |
| Bouwperiode | 2021 |
| Isolatievormen | Dakisolatie Dubbel glas HR-glas Muurisolatie Vloerisolatie Volledig geïsoleerd |
| Woonoppervlakte | 56 m² |
| Inhoud | 208 m³ |
| Oppervlakte externe bergruimte | 5,5 m² |
| Aantal bouwlagen | 1 |
| Aantal kamers | 2 (waarvan 1 slaapkamer) |
| Aantal badkamers | 1 |
| Ligging | Dichtbij openbaar vervoer In woonwijk Nabij school Nabij snelweg |
| Type | Achtertuin |
| Hoofdtuin | Ja |
| Oriëntering | Noorden |
| Heeft een achterom | Ja |
| Staat | Goed onderhouden |
| Energielabel | A+++ |
| Warm water | Elektrische boiler |
| Verwarmingssysteem | Vloerverwarming Warmtepomp Warmterecuperatiesysteem |
| Ventilatie methode | Mechanische ventilatie Natuurlijke ventilatie |
| Badkamervoorzieningen | Douche Toilet Wastafel Wastafelmeubel |
| Tuin aanwezig | Ja |
| Heeft schuur/berging | Ja |
| Heeft zonnepanelen | Ja |
| Heeft ventilatie | Ja |
| Ingeschreven bij de KvK | Ja |
| Jaarlijkse vergadering | Ja |
| Reservefonds | Ja |
| Opstal verzekering | Ja |
| Kadastrale aanduiding | Alkemade K 4312 |
| Perceeloppervlakte | 753 m² |
| Omvang | Appartementsrecht of complex |
| Eigendomsituatie | Eigen grond |
| Indexnummer | 1 |