Beschrijving

Vrijstaand wonen met ruimte, rust én (nieuwbouw)mogelijkheden

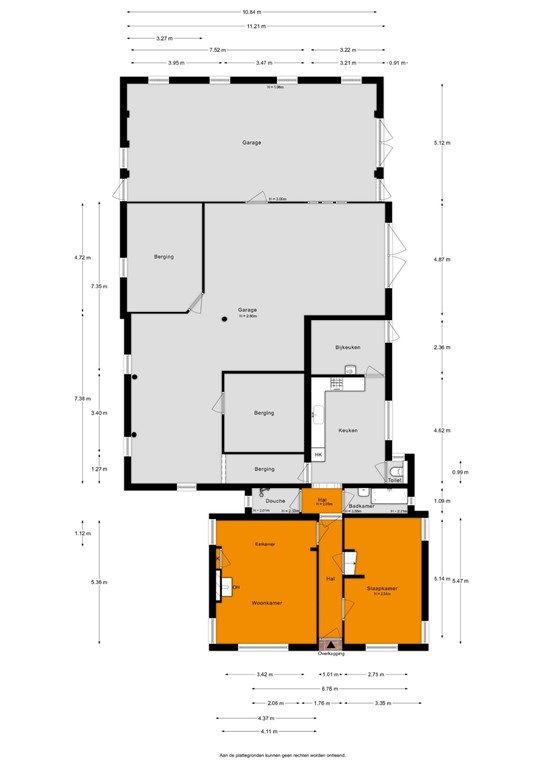
Droom je van het realiseren van een nieuwbouwwoning op een mooie, vrije plek of ben je handig en wil jij van deze woning jouw droomwoning maken? Aan Kaagweg 69 in Abbenes staat deze vrijstaande woning uit 1923 op een royaal perceel van 686 m². De woning biedt niet alleen een woonoppervlakte van ca. 124 m², maar ook een indrukwekkende hoeveelheid inpandige ruimte. Dankzij het vrije uitzicht aan de voorzijde en de rustige ligging woon je hier landelijk en vrij.

Bijzonderheden:
- Bouwjaar: 1923
- Vrijstaande woning
- Perceeloppervlakte 686 m²
- Woonoppervlakte ca. 124 m²
- 165 m² inpandige ruimte (garages en bergingen)
- Vrij uitzicht aan de voorzijde
- Rustige en vrije ligging
- Zeer geschikt voor handige kopers of als bouwkavel
- Energielabel in aanvraag

Waarom wonen aan de Kaagweg 69?

Kaagweg 69 biedt een unieke combinatie van ruimte, vrijheid en potentie. De ligging is rustig en landelijk, met een open uitzicht dat nooit verveelt. Abbenes is een kleinschalig dorp met een prettige sfeer, terwijl voorzieningen en uitvalswegen richting omliggende plaatsen goed bereikbaar zijn. Of je nu de bestaande woning wilt renoveren en moderniseren, veel ruimte zoekt voor werk of hobby’s, of juist een compleet nieuw thuis wilt bouwen op deze fraaie kavel: hier krijg je de vrijheid om jouw woonwensen waar te maken.

Benieuwd naar de mogelijkheden van deze bijzondere plek? Maak snel een afspraak voor een bezichtiging en ervaar zelf de ruimte, rust en potentie van Kaagweg 69 in Abbenes. Dit is zo’n kans die je gezien móét hebben. Maak online een afspraak voor een bezichtiging via https://app.housap.com/booking/firm/92a97a66-1429-4649-a8e8-2a11562a5c9a

Kenmerken